Будинки в Запоріжжя
Продам капитальный дом в дачном кооперативе Пингвин. в Запоріжжя
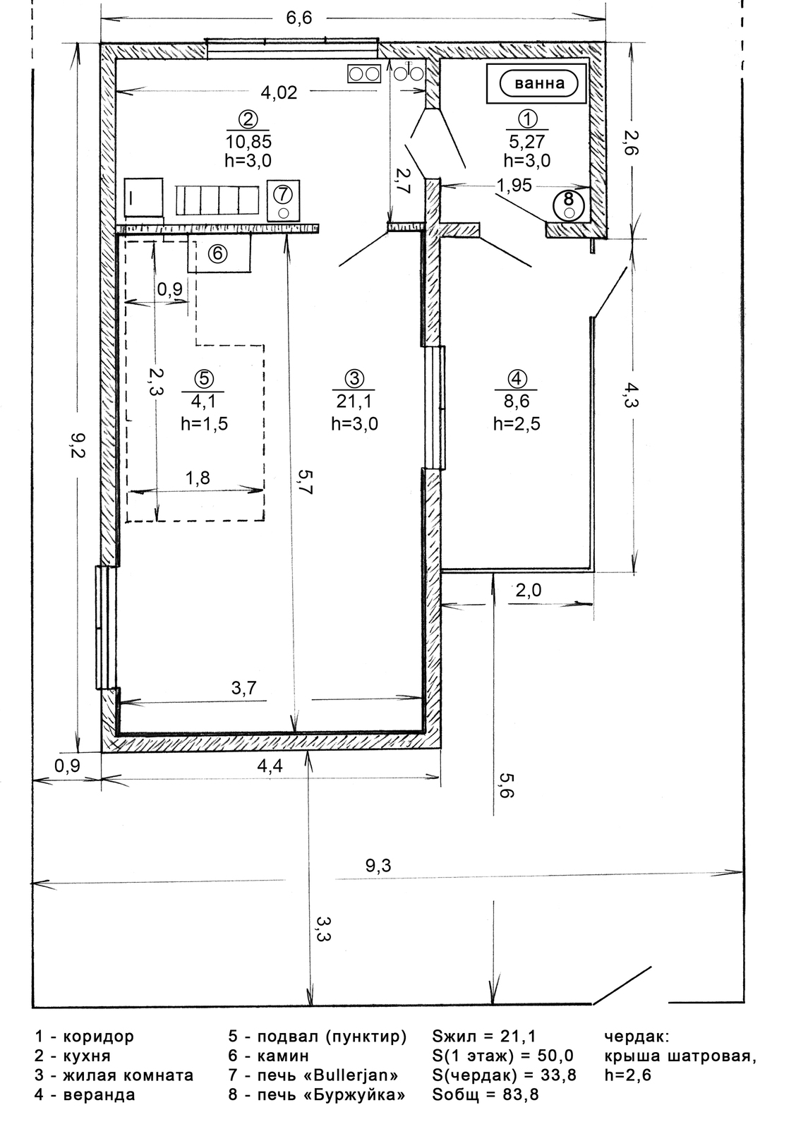
Продам капитальный дом в дачном кооперативе Пингвин., в районе улицы Базовая. От остановки Магистральная 15 минут пешком. Шлакоблок-кирпич. Потолки 3м. Первый этаж- кухня, веранда, предбанник(с ванной и буржуйкой), камин в комнате, печь-булерьян(твердотопливное отопление) на кухне, подвал с вентиляцией(стены, потолок и пол- бетон). Железные ставни. Участок 5 соток. Бассейн(была скважина-замулилась). Вьезд для машины. Хоз/постройки. Сад, виноград. Использовался как жилье. Четыре года никто не проживает. Круглосуточно вода и свет. Продается с мебелью, холодильником, телевизором, газовыми баллонами, садовым инвентарем и т.д. Продажа от собственника.
Дії з оголошенням #1749208
Поділіться з друзями і знайомими
Поділіться оголошенням Продам капитальный дом в дачном кооперативе Пингвин. з друзями, знайомими, потенційними клієнтами, використовуйте для цього соціальні мережі, месенджери. Це додасть оголошенню популярності і ефект багаторазово підвищиться.
Збережіть або повідомте про порушення
бондаренко лена
- На сайті з: 01.09.2016
- Активність: 26.05.2025
Поради з безпеки
- Познайомтеся з продавцем в публічному місці
- Перевірте товар перед покупкою
- Сплачуйте лише після того як переконаєтеся, що товар відповідає опису і вашим вимогам
- Бажано провести операцію при свідках
Інші оголошення від
бондаренко лена
QR-код сторінки
Поділіться QR-кодом в соціальних мережах, чатах, месенджерах щоб ваші знайомі, потенційні клієнти відкрили ваше оголошення на своїх смартфонах.
Казахстан
Україна
Узбекистан
Молдова